標準機

- 17751223052
- 江蘇省昆山市周市鎮昆太路228號5號房
電話:17751223052
QQ:&Site=%E5%92%A8%E8%AF%A2&Menu=yes">
郵箱:yangwenyen@163.com
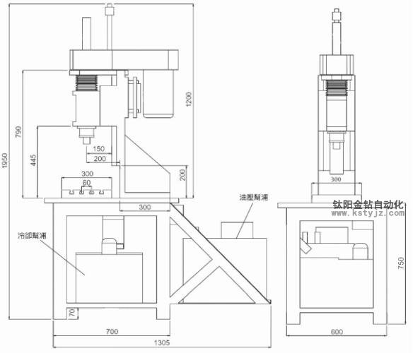
JD-320油壓鉆孔機


鈦陽金鉆鉆孔機軍工品質磐石質量,適合各種孔徑鉆孔。可調式攻位給您帶來極大的便捷,可加裝多軸器、操作臺、組合機、聯立幾臺等等組合方式方便便利。
| 參數 | 鉆孔能力 | 鉆孔功能 | 油壓行程 | 馬力 | 主軸形式 |
| JD-320油壓鉆孔機 | ?5- ?32(S45C) | 5kg/cm2 | 200 mm | 3HP-5HP(鉆孔需求?25以上,建議使用減速馬達) | MT3A、FB-25、ER25、NT3B多軸、DC-32 |

